空氣冷卻器
空氣冷卻器(air cooled heat exchanger)是利用空氣冷卻熱流體的換熱器。管內的熱流體通過管壁和翅片與管外空氣進行換熱,所用的空氣通常由通風機供給??諝饫鋮s器可用于冷卻或冷凝,廣泛應用于:煉油、石油化工塔頂蒸氣的冷凝; 回流油、塔底油的冷卻;各種反應生成物的冷卻;循環氣體的冷卻和電站汽輪機排氣的冷凝。工作壓力可達69兆帕。冷卻效果受氣候變化影響較大。
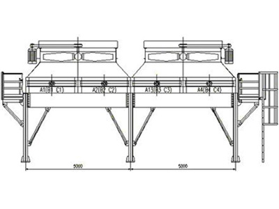
空氣冷卻器簡稱空冷器,以空氣作為冷卻劑,可用作冷卻器,也可用作冷凝器??绽淦髦饕晒苁?、支架和風機組成。空氣冷卻器熱流體在管內流動,空氣在管束外吹過。由于換熱所需的通風量很大,而風壓不高,故多采用軸流式通風機。
管束的型式和材質對空冷器的性能影響很大。由于空氣側的傳熱分系數很小,故常在管外加翅片,以增加傳熱面積和流體湍動,減小熱阻??绽淦鞔蠖疾捎脧较虺崞?绽淦髦型ǔ2捎猛鈴綖?5mm的光管,翅片高為12.5mm的低翅管和翅片高為16mm的高翅管。翅片一般用熱導率高的材料(最常用的是鋁)制成,纏繞或鑲嵌到光管上。為強化空冷器的傳熱效果,可在進口空氣中噴水增濕。這樣既降低了空氣溫度,又增大了傳熱系數。采用空冷器可節省大量工業用水,減少環境污染,降低基建費用。特別在缺水地區,以空冷代替水冷,可以緩和水源不足的矛盾。
空氣冷卻器簡稱空冷器,以空氣作為冷卻劑,可用作冷卻器,也可用作冷凝器??绽淦髦饕晒苁?、支架和風機組成。空氣冷卻器熱流體在管內流動,空氣在管束外吹過。由于換熱所需的通風量很大,而風壓不高,故多采用軸流式通風機。
管束的型式和材質對空冷器的性能影響很大。由于空氣側的傳熱分系數很小,故常在管外加翅片,以增加傳熱面積和流體湍動,減小熱阻??绽淦鞔蠖疾捎脧较虺崞?绽淦髦型ǔ2捎猛鈴綖?5mm的光管,翅片高為12.5mm的低翅管和翅片高為16mm的高翅管。翅片一般用熱導率高的材料(最常用的是鋁)制成,纏繞或鑲嵌到光管上。為強化空冷器的傳熱效果,可在進口空氣中噴水增濕。這樣既降低了空氣溫度,又增大了傳熱系數。采用空冷器可節省大量工業用水,減少環境污染,降低基建費用。特別在缺水地區,以空冷代替水冷,可以緩和水源不足的矛盾。
![]() 水平式空氣冷卻器 |
![]() V型空氣冷卻器 |
![]() 空氣冷卻器示意圖 |
![]() 空氣冷卻器示意圖 |

空氣冷卻器系列


